Red Class Wood kapschuur uitbreiding Malmö Red Class Wood kapschuur uitbreiding Malmö
Red Class Wood kapschuur uitbreiding Malmö
Red Class Wood kapschuur uitbreiding Malmö

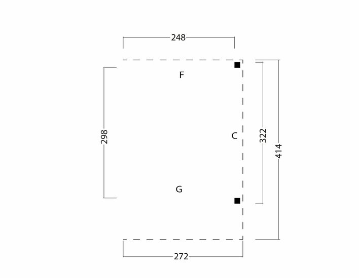
Red Class Wood kapschuur uitbreiding Malmö - 256 × 414 cm

1.109,00
Prijs per stuk
Of 3 termijnen van 369.67
  • Altijd de laagste prijs, gegarandeerd
  • 9.1/10 beoordeeld door klanten
  • Snelle levering uit eigen voorraad
  • Betaal vooraf, in termijnen of bij levering
Red Class Wood kapschuur uitbreiding Malmö
Red Class Wood kapschuur uitbreiding Malmö - 256 × 414 cm 1.109,00

Product goedkoper gezien?

Claim de laagste prijsgarantie!

Laagsteprijsgarantie
Laagsteprijsgarantie

Wij garanderen altijd de laagste prijs! Zie je hetzelfde product ergens anders goedkoper? Vul dan je gegevens hieronder in, en wij passen onze prijs meteen voor je aan.

 

Red Class Wood kapschuur uitbreiding Malmö

Veelgestelde vragen

Wat zijn de transportkosten?
De bezorgkosten van je Countrywood bestelling hangen af van de grootte, het gewicht en de afleverlocatie van de producten. We hanteren geen vast tarief voor onze producten; de bezorgkosten voor grotere of zwaardere items kunnen aanzienlijk hoger zijn dan voor bijvoorbeeld een parasol, die we meestal gratis thuisbezorgen. Wanneer je het gewenste product aan je winkelmandje toevoegt, worden de verzendkosten automatisch weergegeven. Voor meer informatie kun je contact opnemen met onze klantenservice. De transportkosten voor leveringen op de Waddeneilanden zijn op aanvraag.
Wat is de levertijd?
Ons assortiment bestaat uit meer dan 3.500 producten, dus de levertijd kan per product verschillen. De levertijd staat duidelijk vermeld op de productpagina. Tijdens het bestelproces kun je zelf een gewenste leverdatum kiezen, rekening houdend met de levertijd van het product. We sturen je een bevestigingsmail met de definitieve leverdatum. De transporteur stuurt je een dag van te voren nog de verwachte aankomsttijd. Wil je de bestelling pas op een later moment ontvangen? Geen probleem! Geef dit gewoon aan bij je bestelling.
Kan ik zelf een gewenste leverdatum opgeven?
Je kunt tijdens het bestellen een leverdatum kiezen. We doen ons best om je bestelling op die datum te leveren, maar houd rekening met de levertijd van het product. Je ontvangt een e-mail met de bevestigde datum. Onze transporteurs leveren alleen van maandag tot en met vrijdag.
Hebben jullie een showroom?
We hebben geen showroom meer, dus je kunt onze producten niet in het echt bekijken. Door het succes van onze webshop verkopen we nu alleen nog online. Onze loods, die eerst als showroom diende, is omgebouwd tot opslaglocatie, zodat we sneller kunnen leveren en de laagste prijzen kunnen garanderen. Ook al kun je niet langs komen, we helpen je graag op andere manieren! We kunnen bellen, mailen, appen of extra fotos sturen om je verder te helpen. Het afhalen van je bestelling is wel mogelijk!
Waar zijn jullie gevestigd?
Onze warehouses bevinden zich in Twente, met locaties in Almelo, Hengelo, Enter en Ambt-Delden. Van daaruit verzenden we ons assortiment van meer dan 3.500 producten door heel Europa. Ons hoofdkantoor zit gevestigd in Almelo, waar we klantenservice, marketing en sales coördineren. Door het succes van onze webshop zijn we nu alleen nog online actief en hebben we geen showroom meer waar je producten kunt bekijken. We begrijpen echter dat sommige klanten hun bestelling liever ophalen. Dit is mogelijk op afspraak bij ons warehouse in Almelo (Bedrijvenpark Twente 400).
Review toevoegen
Red Class Wood kapschuur uitbreiding Malmö

Schrijf een beoordeling over dit product.

5,0

Beoordelingen

Nog geen beoordelingen

De Ondernemer