 
					 
					 
								 
								Claim de laagste prijsgarantie!
 
										Wij garanderen altijd de laagste prijs! Zie je hetzelfde product ergens anders goedkoper? Vul dan je gegevens hieronder in, en wij passen onze prijs meteen voor je aan.
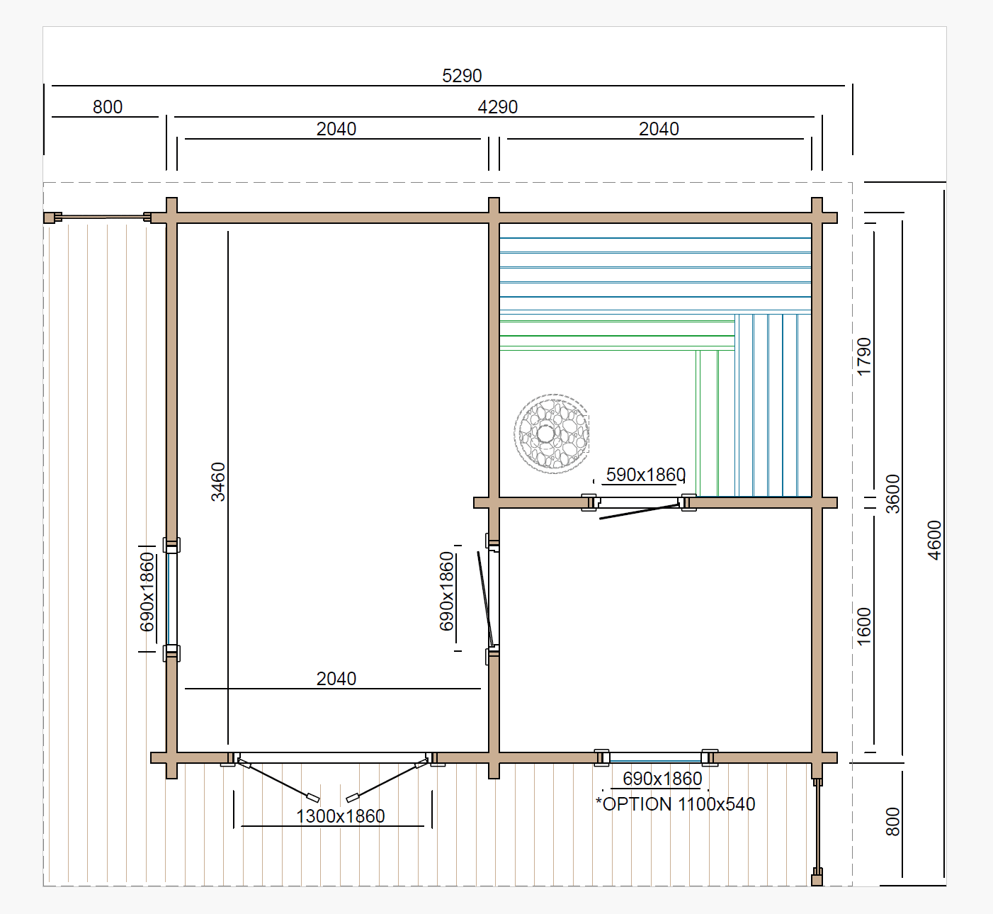
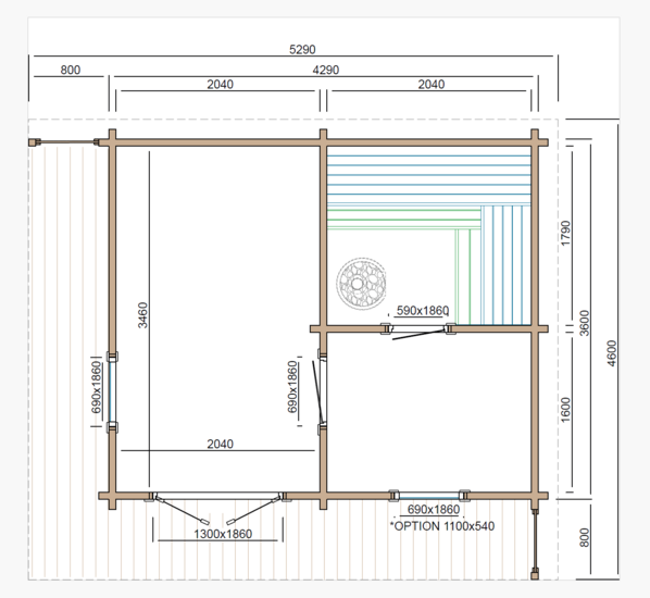
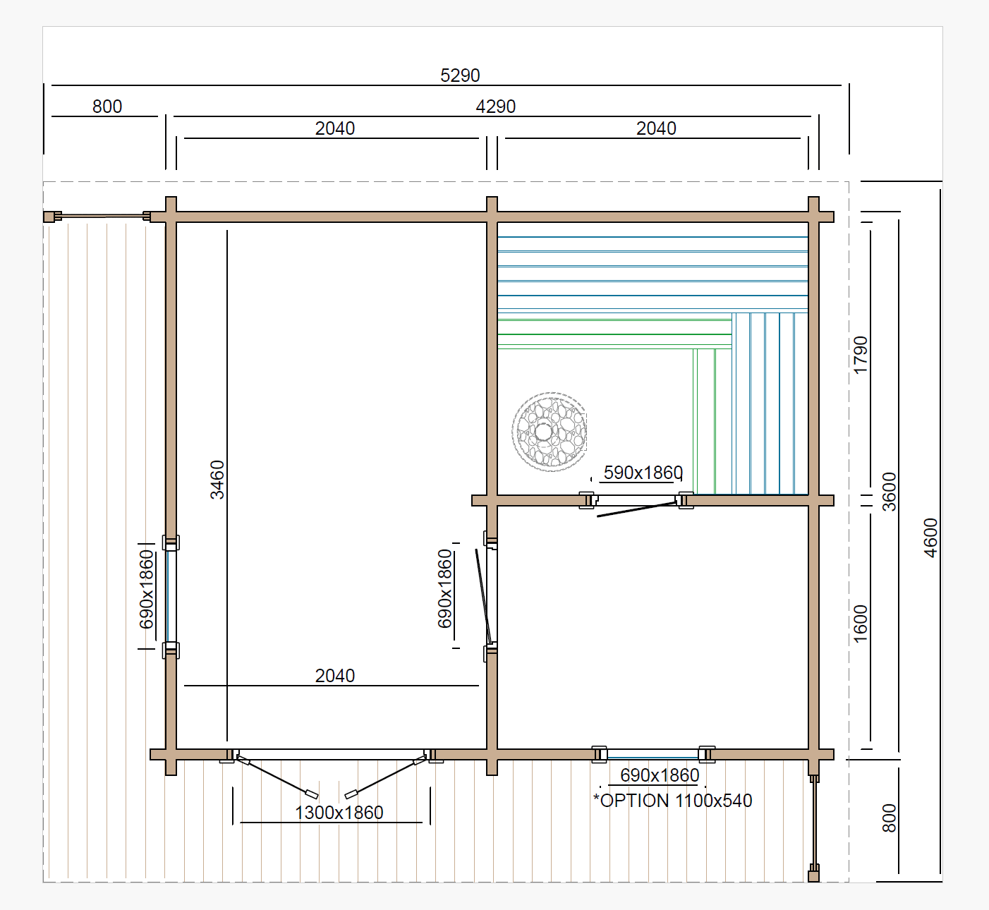
De Saunahuis Puolanka is een ruim en licht saunahuis met een mooie indeling en dubbele deuren. Met een afmeting van 420 x 351 cm en een luifel van 80 cm biedt dit model genoeg ruimte voor 4 tot 6 personen. De 40 mm dikke wanden houden de warmte goed vast en zorgen voor een aangename temperatuur tijdens het gebruik.
De sauna is gemaakt van onbehandeld, geschaafd vurenhout. Dit hout heeft een natuurlijke uitstraling en kan worden behandeld met olie of beits, zodat het beter bestand is tegen zon, wind en regen. De dubbele buitendeuren met gehard glas laten veel licht binnen en geven de sauna een open uitstraling. Binnen vind je een binnendeur met bronskleurig glas die de voorruimte scheidt van de saunaruimte. Het dak is afgewerkt met zwarte shingles (inbegrepen).
Binnen zijn twee banken van elzenhout op verschillende hoogtes, zodat je comfortabel kunt zitten of liggen. De binnenvloer is van vurenhout en de buitenvloer van geïmpregneerd hout, wat zorgt voor stevigheid en bescherming tegen vocht.
Maak je saunahuis helemaal af met de juiste accessoires. Denk bijvoorbeeld aan een complete sauna accessoire set met een houten emmer, pollepel, thermometer, hygrometer en een zandloper, alles wat je nodig hebt voor een echte saunabeleving. Voor extra sfeer voeg je een saunalamp toe, met warme verlichting achter een houten afscherming. Wil je de hitte langer vasthouden, dan is een steenkorf perfect om meer stenen op te stapelen. Ook aan comfort is gedacht: met een rugsteun zit je ontspannen en geniet je nog langer. Voor een frisse bries of extra licht kun je een extra raam plaatsen, en wie van een moderne wellness-sfeer houdt, kiest voor de LED-set met kleurrijke lichtstanden en afstandsbediening. Zo maak je jouw sauna persoonlijk, sfeervol en helemaal compleet.
Daarnaast vind je bij ons een compleet assortiment Harvia sauna accessoires, zoals een stoomgeurset, sauna-handdoeken, verzorgingsset, kussen, accessoire set en brandhoutmand. Perfect om jouw saunabeleving nét dat beetje luxer te maken.
Behandel het hout met olie of beits om het langer mooi te houden en beter te beschermen tegen vocht en zon.
Deze sauna wordt doorgaans binnen 1 week geleverd in de Benelux. Levering naar andere landen is mogelijk en duurt meestal tot 14 dagen. Transportkosten voor het buitenland zijn op aanvraag. De sauna wordt geleverd als bouwpakket en is eenvoudig zelf te monteren met de duidelijke handleiding.
Je krijgt 2 jaar garantie en altijd de laagste prijsgarantie. Zie je dezelfde sauna ergens goedkoper? Dan passen wij de prijs aan.
Een ruim en stevig saunahuis met veel licht, dubbele deuren en comfortabele banken. Mooi om te zien en fijn om samen van te genieten.
 
						Nog geen beoordelingen
