 
					 
					 
						 
								 
								 
								Wij garanderen altijd de laagste prijs! Zie je hetzelfde product ergens anders goedkoper? Vul dan je gegevens hieronder in, en wij passen onze prijs meteen voor je aan.
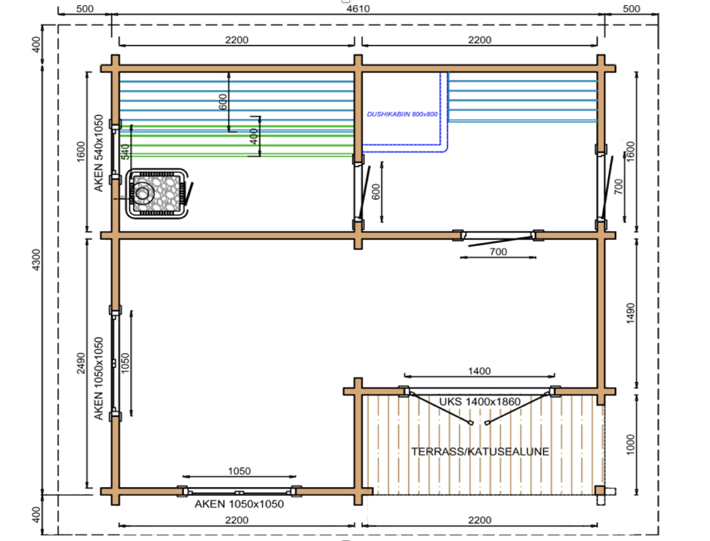
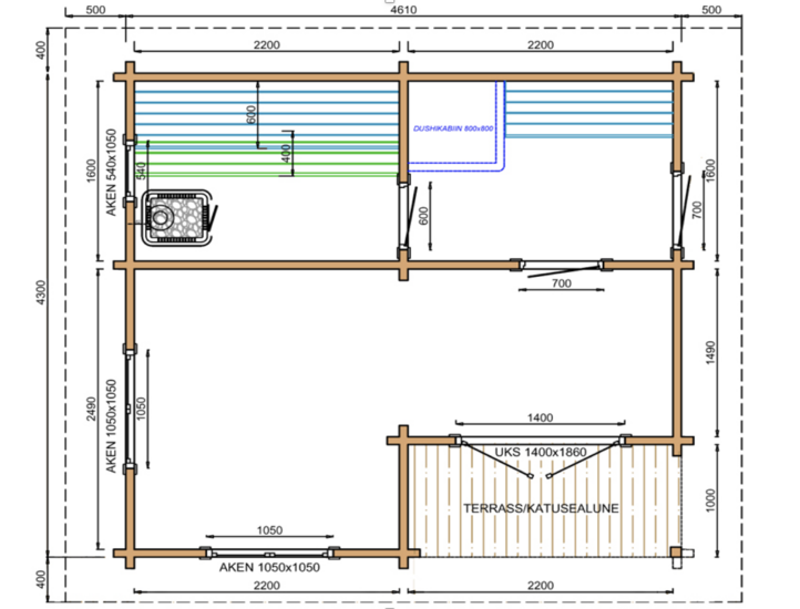
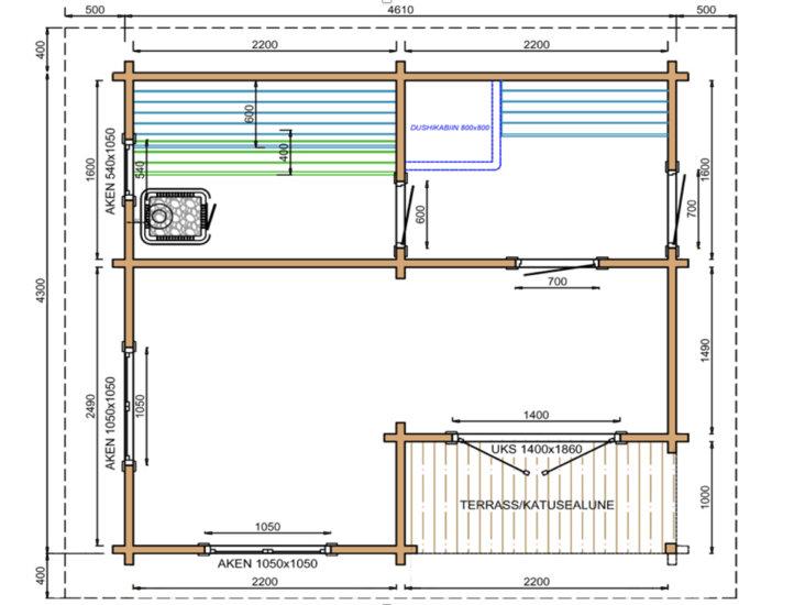
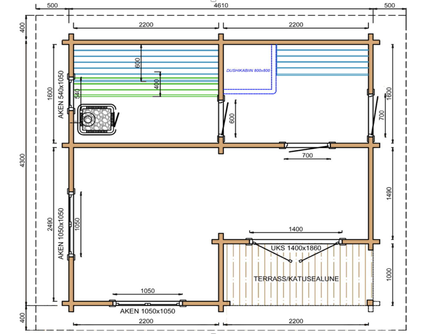
De Sauna huis Tanhua is een ruim en stevig saunahuis met drie aparte ruimtes. Met een afmeting van 461 x 430 cm biedt dit model genoeg plek om te ontspannen, om te kleden en te genieten van een warme saunasessie. De 70 mm dikke wanden houden de warmte goed vast en zorgen voor een stabiel binnenklimaat, het hele jaar door.
De sauna is gemaakt van onbehandeld, geschaafd vurenhout. Dit hout heeft een natuurlijke uitstraling en kan eenvoudig worden behandeld met olie of beits om het beter te beschermen tegen zon en regen. De dubbele deuren met gehard isolatieglas zorgen voor veel licht en geven de sauna een open karakter. Er zijn in totaal drie te openen ramen, zodat je ook kunt ventileren wanneer je wilt.
Binnen vind je drie aparte ruimtes, die je kunt indelen als sauna, rustruimte en kleedgedeelte. De vurenhouten vloer en meegeleverde fundering zorgen voor een stevige basis. De staande palen van 9 x 9 cm geven het geheel extra stabiliteit.
Maak je saunahuis helemaal af met de juiste accessoires. Denk bijvoorbeeld aan een complete sauna accessoire set met een houten emmer, pollepel, thermometer, hygrometer en een zandloper, alles wat je nodig hebt voor een echte saunabeleving. Voor extra sfeer voeg je een saunalamp toe, met warme verlichting achter een houten afscherming. Wil je de hitte langer vasthouden, dan is een steenkorf perfect om meer stenen op te stapelen. Ook aan comfort is gedacht: met een rugsteun zit je ontspannen en geniet je nog langer. Voor een frisse bries of extra licht kun je een extra raam plaatsen, en wie van een moderne wellness-sfeer houdt, kiest voor de LED-set met kleurrijke lichtstanden en afstandsbediening. Zo maak je jouw sauna persoonlijk, sfeervol en helemaal compleet.
Daarnaast vind je bij ons een compleet assortiment Harvia sauna accessoires, zoals een stoomgeurset, sauna-handdoeken, verzorgingsset, kussen, accessoire set en brandhoutmand. Perfect om jouw saunabeleving nét dat beetje luxer te maken.
Behandel het hout met olie of beits om het langer mooi te houden en beter te beschermen tegen vocht en zon.
De Sauna huis Tanhua wordt doorgaans binnen 1 week geleverd in de Benelux. Levering naar andere landen is mogelijk en duurt meestal tot 14 dagen. Transportkosten voor het buitenland zijn op aanvraag. De sauna wordt geleverd als bouwpakket en kan eenvoudig zelf worden opgebouwd met de duidelijke handleiding.
Je krijgt 2 jaar garantie en altijd de laagste prijsgarantie. Zie je dezelfde sauna ergens goedkoper? Dan passen wij onze prijs aan.
Een ruim saunahuis van vurenhout met drie aparte ruimtes, veel licht en een sterke constructie. Mooi om te zien en praktisch in gebruik.
 
						Nog geen beoordelingen
