👑 KONINGSDEAL! Gebruik code KONING en pak extra korting op alle gebouwen ⏳ Geldig t/m dinsdag 28 april
Odense, Red Class platdak XXL, type 1 Odense, Red Class platdak XXL, type 1
Odense, Red Class platdak XXL, type 1
Odense, Red Class platdak XXL, type 1

Odense, Red Class platdak XXL, type 1

4.539,00
Op voorraad
  • Altijd de laagste prijs, gegarandeerd
  • 9.1/10 beoordeeld door klanten
  • Snelle levering uit eigen voorraad
  • Betaal vooraf, in termijnen of bij levering
Odense, Red Class platdak XXL, type 1
Odense, Red Class platdak XXL, type 1 4.539,00

Product goedkoper gezien?

Claim de laagste prijsgarantie!

Laagsteprijsgarantie
Laagsteprijsgarantie

Wij garanderen altijd de laagste prijs! Zie je hetzelfde product ergens anders goedkoper? Vul dan je gegevens hieronder in, en wij passen onze prijs meteen voor je aan.

Overkapping Plat dak Odense XXL – Type 1

De Overkapping Plat dak Odense XXL – Type 1 is ideaal voor wie op zoek is naar een ruime en moderne overkapping. Dankzij het strakke platte dak en de nette afwerking past deze overkapping perfect in iedere tuin. De Odense XXL wordt geleverd als kant-en-klaar bouwpakket inclusief EPDM dakbedekking.

Specificaties

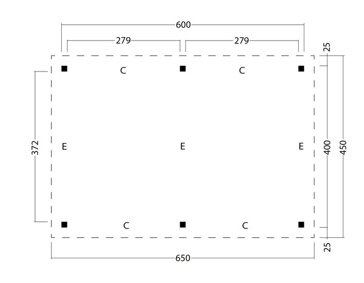
Afmetingen buitenmaat: 6,50 x 4,50 x 2,66 meter
Funderingsmaat: 6,00 x 4,00 meter
Materiaal: Red Class Wood
Behandeling: Groen geïmpregneerd
Houtbewerking: Geschaafd en gedroogd
Staanders: 14 x 14 cm
Soort dak: Plat dak
Dakbedekking: Inclusief EPDM dakbedekking
Bouwpakket: Kant-en-klaar inclusief bevestigingsmaterialen en duidelijke handleiding
Bouwwijze: Vrijstaand
Gespiegeld opbouwen: Mogelijk

Materiaal en afwerking

De Odense XXL Type 1 is gemaakt van geschaafd en gedroogd Red Class Wood. Dankzij de impregnatie is het hout goed beschermd tegen vocht en weersinvloeden, waardoor de overkapping lang meegaat.

Toepassingen van deze overkapping

Perfect als ruime loungeplek, buitenkeuken, terrasoverkapping of beschutte plek voor tuinmeubilair.

Levering van de Overkapping Plat dak Odense XXL – Type 1

De overkapping wordt compleet geleverd als bouwpakket met EPDM dakbedekking, bevestigingsmaterialen en een duidelijke montagehandleiding. Levering binnen Nederland is gratis. Voor levering naar België, Duitsland of andere landen zijn de kosten op aanvraag.

Montage van de Overkapping Plat dak Odense XXL – Type 1

Met de duidelijke handleiding zet je deze overkapping eenvoudig zelf in elkaar. Ook gespiegeld opbouwen is mogelijk, zodat je de indeling kunt aanpassen aan jouw tuin.

Waarom kiezen voor de Overkapping Plat dak Odense XXL – Type 1?

Sterk Red Class Wood, geschaafd en geïmpregneerd
Strakke uitstraling dankzij het platte dak
EPDM dakbedekking standaard inbegrepen
Kant-en-klaar bouwpakket voor eenvoudige montage
Mogelijkheid om gespiegeld op te bouwen

Veelgestelde vragen over de Overkapping Plat dak Odense XXL – Type 1

Wat is de levertijd?
De levering duurt meestal 1 tot 2 weken. Je kunt zelf een gewenste leverdatum kiezen.

Wordt de dakbedekking meegeleverd?
Ja, de EPDM dakbedekking is standaard inbegrepen.

Kan ik de overkapping gespiegeld opbouwen?
Ja, dat kan en staat uitgelegd in de montagehandleiding.

Kan ik de overkapping zelf monteren?
Ja, het kant-en-klaar bouwpakket is speciaal ontwikkeld voor eenvoudige zelfmontage.

Is het hout behandeld?
Ja, het hout is groen geïmpregneerd voor extra bescherming tegen weersinvloeden.

Leveren jullie ook in België of Duitsland?
Ja, wij leveren in heel Europa. De kosten daarvoor zijn op aanvraag.

Overkapping Plat dak Odense XXL – Type 1 kopen bij Countrywood

Bestel jouw Odense XXL Type 1 eenvoudig bij Countrywood. Wij leveren snel uit voorraad, bieden de laagste prijsgarantie en bezorgen gratis in Nederland. Maak jouw tuin compleet met de Odense Red Class Platdak XXL – Type 1!

Odense, Red Class platdak XXL, type 1

Veelgestelde vragen

Wat zijn de transportkosten?
De bezorgkosten van je Countrywood bestelling hangen af van de grootte, het gewicht en de afleverlocatie van de producten. We hanteren geen vast tarief voor onze producten; de bezorgkosten voor grotere of zwaardere items kunnen aanzienlijk hoger zijn dan voor bijvoorbeeld een parasol, die we meestal gratis thuisbezorgen. Wanneer je het gewenste product aan je winkelmandje toevoegt, worden de verzendkosten automatisch weergegeven. Voor meer informatie kun je contact opnemen met onze klantenservice. De transportkosten voor leveringen op de Waddeneilanden zijn op aanvraag.
Wat is de levertijd?
Ons assortiment bestaat uit meer dan 3.500 producten, dus de levertijd kan per product verschillen. De levertijd staat duidelijk vermeld op de productpagina. Tijdens het bestelproces kun je zelf een gewenste leverdatum kiezen, rekening houdend met de levertijd van het product. We sturen je een bevestigingsmail met de definitieve leverdatum. De transporteur stuurt je een dag van te voren nog de verwachte aankomsttijd. Wil je de bestelling pas op een later moment ontvangen? Geen probleem! Geef dit gewoon aan bij je bestelling.
Kan ik zelf een gewenste leverdatum opgeven?
Je kunt tijdens het bestellen een leverdatum kiezen. We doen ons best om je bestelling op die datum te leveren, maar houd rekening met de levertijd van het product. Je ontvangt een e-mail met de bevestigde datum. Onze transporteurs leveren alleen van maandag tot en met vrijdag.
Hoe lang zijn de offertes geldig?
Onze offertes zijn standaard geldig 2 weken na offerte datum. Countrywood behoud zich het recht de order geheel of gedeeltelijk te annuleren indien beperkte beschikbaarheid of prijswijzigingen.
Waar zijn jullie gevestigd en hebben jullie een showroom?
Onze warehouses bevinden zich in Twente, met locaties in Almelo, Hengelo, Enter en Ambt-Delden. Van daaruit verzenden we ons assortiment van meer dan 3.500 producten door heel Europa. Ons hoofdkantoor zit gevestigd in Almelo, waar we klantenservice, marketing en sales coördineren. Door het succes van onze webshop zijn we nu alleen nog online actief en hebben we geen showroom meer waar je producten kunt bekijken. We begrijpen echter dat sommige klanten hun bestelling liever ophalen. Dit is mogelijk op afspraak bij ons warehouse in Almelo (Bedrijvenpark Twente 400). We hebben geen showroom meer, dus je kunt onze producten niet in het echt bekijken. Door het succes van onze webshop verkopen we nu alleen nog online. Onze loods, die eerst als showroom diende, is omgebouwd tot opslaglocatie, zodat we sneller kunnen leveren en de laagste prijzen kunnen garanderen. Ook al kun je niet langs komen, we helpen je graag op andere manieren! We kunnen bellen, mailen, appen of extra fotos sturen om je verder te helpen. Het afhalen van je bestelling is wel mogelijk!
Review toevoegen
Odense, Red Class platdak XXL, type 1

Schrijf een beoordeling over dit product.

5,0

Beoordelingen

Nog geen beoordelingen

De Ondernemer