Saunahuis Puolanka - 40 mm Saunahuis Puolanka - 40 mm
Saunahuis Puolanka - 40 mm
Saunahuis Puolanka - 40 mm

Saunahuis Puolanka - 40 mm onbehandeld

8.109,00
Prijs per stuk
Persoonlijke korting aanvragen
  • Altijd de laagste prijs, gegarandeerd
  • 9.1/10 beoordeeld door klanten
  • Snelle levering uit eigen voorraad
  • Betaal vooraf, in termijnen of bij levering

Product goedkoper gezien?

Claim de laagste prijsgarantie!

Laagsteprijsgarantie
Laagsteprijsgarantie

Wij garanderen altijd de laagste prijs! Zie je hetzelfde product ergens anders goedkoper? Vul dan je gegevens hieronder in, en wij passen onze prijs meteen voor je aan.

Saunahuis Puolanka | 40 mm onbehandeld vuren

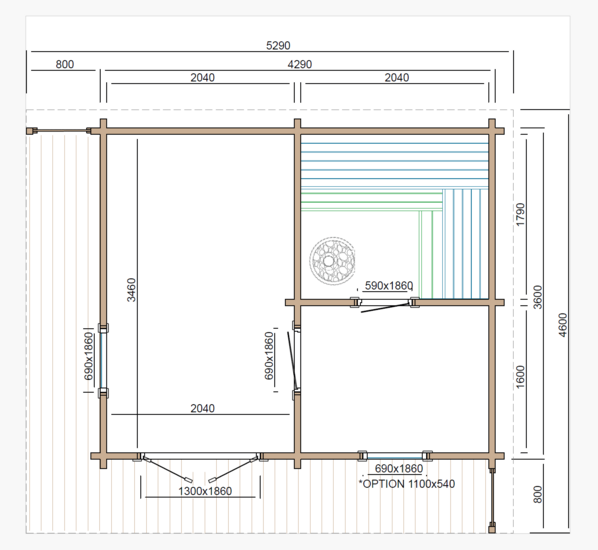
De Saunahuis Puolanka is een ruim en licht saunahuis met een mooie indeling en dubbele deuren. Met een afmeting van 420 x 351 cm en een luifel van 80 cm biedt dit model genoeg ruimte voor 4 tot 6 personen. De 40 mm dikke wanden houden de warmte goed vast en zorgen voor een aangename temperatuur tijdens het gebruik.

Materiaal en afwerking

De sauna is gemaakt van onbehandeld, geschaafd vurenhout. Dit hout heeft een natuurlijke uitstraling en kan worden behandeld met olie of beits, zodat het beter bestand is tegen zon, wind en regen. De dubbele buitendeuren met gehard glas laten veel licht binnen en geven de sauna een open uitstraling. Binnen vind je een binnendeur met bronskleurig glas die de voorruimte scheidt van de saunaruimte. Het dak is afgewerkt met zwarte shingles (inbegrepen).

Binnen zijn twee banken van elzenhout op verschillende hoogtes, zodat je comfortabel kunt zitten of liggen. De binnenvloer is van vurenhout en de buitenvloer van geïmpregneerd hout, wat zorgt voor stevigheid en bescherming tegen vocht.

Extra accessoires voor meer comfort

Maak je saunahuis helemaal af met de juiste accessoires. Denk bijvoorbeeld aan een complete sauna accessoire set met een houten emmer, pollepel, thermometer, hygrometer en een zandloper, alles wat je nodig hebt voor een echte saunabeleving. Voor extra sfeer voeg je een saunalamp toe, met warme verlichting achter een houten afscherming. Wil je de hitte langer vasthouden, dan is een steenkorf perfect om meer stenen op te stapelen. Ook aan comfort is gedacht: met een rugsteun zit je ontspannen en geniet je nog langer. Voor een frisse bries of extra licht kun je een extra raam plaatsen, en wie van een moderne wellness-sfeer houdt, kiest voor de LED-set met kleurrijke lichtstanden en afstandsbediening. Zo maak je jouw sauna persoonlijk, sfeervol en helemaal compleet.

Daarnaast vind je bij ons een compleet assortiment Harvia sauna accessoires, zoals een stoomgeurset, sauna-handdoeken, verzorgingsset, kussen, accessoire set en brandhoutmand. Perfect om jouw saunabeleving nét dat beetje luxer te maken.

Gebruik en onderhoud

Behandel het hout met olie of beits om het langer mooi te houden en beter te beschermen tegen vocht en zon.

Levering en montage

Deze sauna wordt doorgaans binnen 1 week geleverd in de Benelux. Levering naar andere landen is mogelijk en duurt meestal tot 14 dagen. Transportkosten voor het buitenland zijn op aanvraag. De sauna wordt geleverd als bouwpakket en is eenvoudig zelf te monteren met de duidelijke handleiding.

Garantie & laagste prijs

Je krijgt 2 jaar garantie en altijd de laagste prijsgarantie. Zie je dezelfde sauna ergens goedkoper? Dan passen wij de prijs aan.

Bestel de Saunahuis Puolanka bij Countrywood

Een ruim en stevig saunahuis met veel licht, dubbele deuren en comfortabele banken. Mooi om te zien en fijn om samen van te genieten.

Saunahuis Puolanka - 40 mm

Veelgestelde vragen

Wat zijn de transportkosten?
De bezorgkosten van je Countrywood bestelling hangen af van de grootte, het gewicht en de afleverlocatie van de producten. We hanteren geen vast tarief voor onze producten; de bezorgkosten voor grotere of zwaardere items kunnen aanzienlijk hoger zijn dan voor bijvoorbeeld een parasol, die we meestal gratis thuisbezorgen. Wanneer je het gewenste product aan je winkelmandje toevoegt, worden de verzendkosten automatisch weergegeven. Voor meer informatie kun je contact opnemen met onze klantenservice. De transportkosten voor leveringen op de Waddeneilanden zijn op aanvraag.
Wat is de levertijd?
Ons assortiment bestaat uit meer dan 3.500 producten, dus de levertijd kan per product verschillen. De levertijd staat duidelijk vermeld op de productpagina. Tijdens het bestelproces kun je zelf een gewenste leverdatum kiezen, rekening houdend met de levertijd van het product. We sturen je een bevestigingsmail met de definitieve leverdatum. De transporteur stuurt je een dag van te voren nog de verwachte aankomsttijd. Wil je de bestelling pas op een later moment ontvangen? Geen probleem! Geef dit gewoon aan bij je bestelling.
Kan ik zelf een gewenste leverdatum opgeven?
Je kunt tijdens het bestellen een leverdatum kiezen. We doen ons best om je bestelling op die datum te leveren, maar houd rekening met de levertijd van het product. Je ontvangt een e-mail met de bevestigde datum. Onze transporteurs leveren alleen van maandag tot en met vrijdag.
Hebben jullie een showroom?
We hebben geen showroom meer, dus je kunt onze producten niet in het echt bekijken. Door het succes van onze webshop verkopen we nu alleen nog online. Onze loods, die eerst als showroom diende, is omgebouwd tot opslaglocatie, zodat we sneller kunnen leveren en de laagste prijzen kunnen garanderen. Ook al kun je niet langs komen, we helpen je graag op andere manieren! We kunnen bellen, mailen, appen of extra foto's sturen om je verder te helpen. Het afhalen van je bestelling is wel mogelijk!
Waar zijn jullie gevestigd?
Onze warehouses bevinden zich in Twente, met locaties in Almelo, Hengelo, Enter en Ambt-Delden. Van daaruit verzenden we ons assortiment van meer dan 3.500 producten door heel Europa. Ons hoofdkantoor zit gevestigd in Almelo, waar we klantenservice, marketing en sales coördineren. Door het succes van onze webshop zijn we nu alleen nog online actief en hebben we geen showroom meer waar je producten kunt bekijken. We begrijpen echter dat sommige klanten hun bestelling liever ophalen. Dit is mogelijk op afspraak bij ons warehouse in Almelo (Bedrijvenpark Twente 400).
Review toevoegen
Saunahuis Puolanka - 40 mm

Schrijf een beoordeling over dit product.

5,0

Beoordelingen

Nog geen beoordelingen

De Ondernemer